امتیاز کاربران
۴.۶/۵
اخرین به روز رسانی ۱۴۰۲/۰۹/۰۸
طراحی و اجرای پلان معماری پروژه های ساختمانی
انواع خدمات تخصصی نقشه برداری
بازه قیمت خدمات : ۴۵۰ تا ۲۰۰۰ هزار تومان
بده بکوبیم!
تارو پود ساختمان شما
ما سعی داریم دنیا را کمی بیشتر شبیه روُیاهایتان کنیم
اخرین به روز رسانی ۱۴۰۲/۰۹/۰۸
انواع خدمات تخصصی نقشه برداری
بازه قیمت خدمات : ۴۵۰ تا ۲۰۰۰ هزار تومان
۴۲
۷
۹۱ %
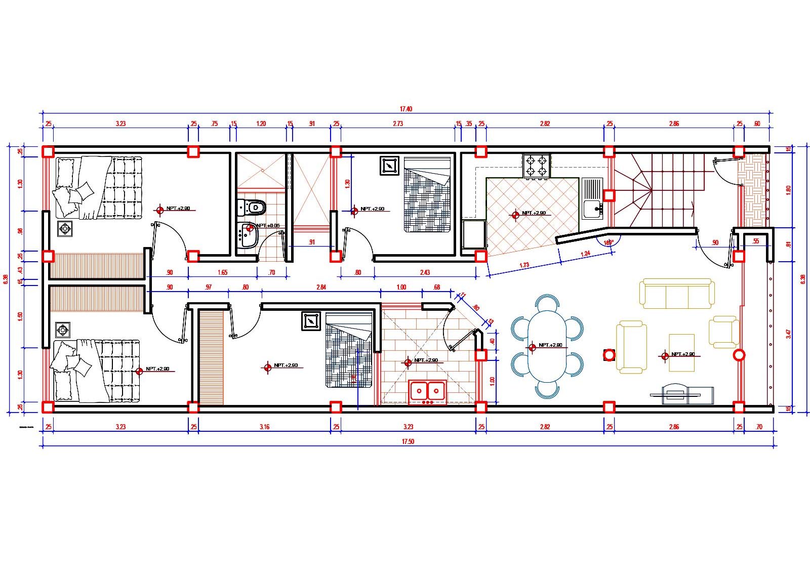
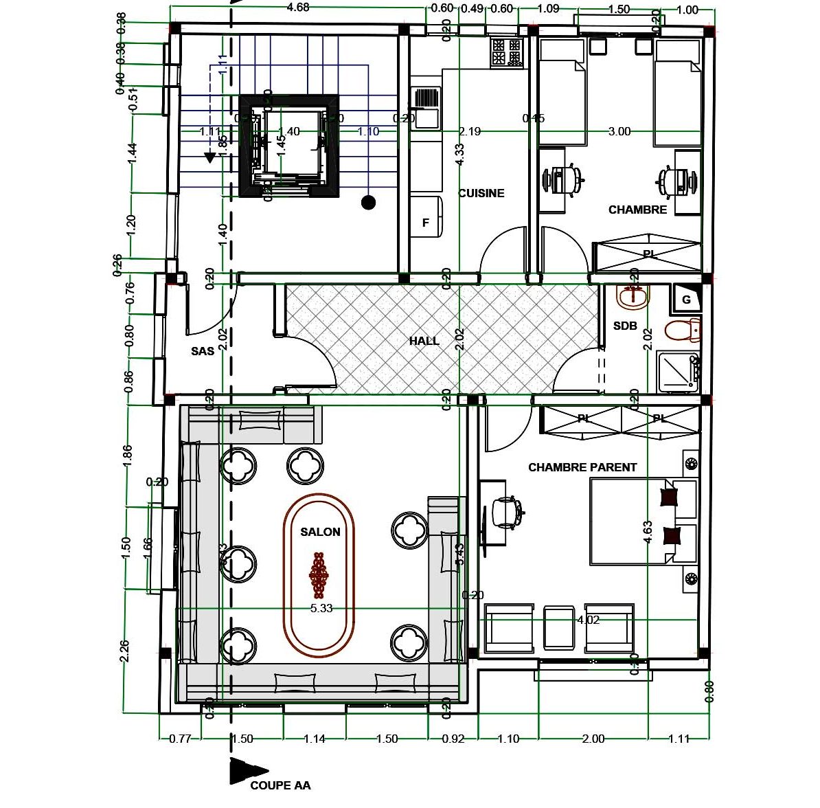
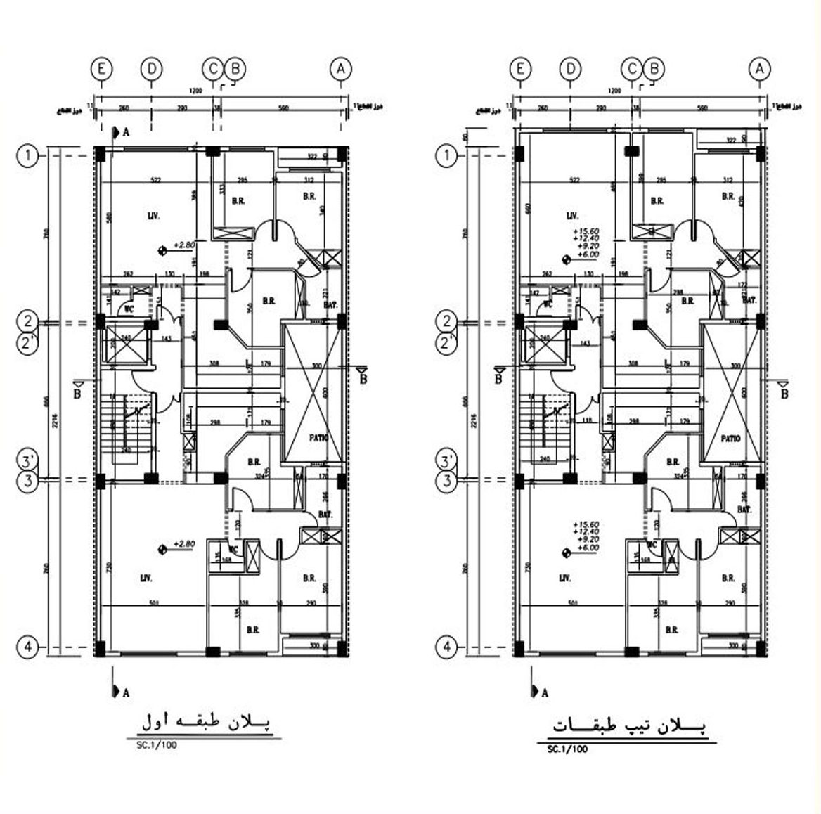
پلان معماری راهنمای چگونگی ساخت یک سازه را ارائه میدهد. به عبارتی، پلان طرحی دو بعدی (زاویه دید از بالا به پایین) از ایدهها و خلاقیتهای یک معمار است که جزئیات مورد نیاز برای ساخت یک ساختمان را نمایش میدهد. پلان معماری به مانند یک نقشه راه میماند؛ همانطور که شما میخواهید از شهری به شهر دیگر سفر کنید، به نقشه مسیر نیاز دارید، دقیقاً پلان نیز چنین نقشی را ایفا میکند.
این نقشه اطمینان میدهد که یک سازه میتواند مطابق با هدف و نیازهای شهرسازی ساخته شود. بدون نقشههای معماری، تصمیم گیری در مورد نحوه طراحی ساختمان چالش برانگیز خواهد بود. پلان معماری اجازه میدهد تا مسائل قبل از شروع ساخت واقعی، حل و فصل شوند. در نقشه معماری جزئیاتی مانند ابعاد زمین، ابعاد و جانمایی فضاها، بازشوها، ارتفاع طبقات، راه پله و سایر موارد قید میشوند.
زیر بنای کلی متری:
۴۲,۸۴۵ تومان
زیر بنای کلی متری:
۴۳,۰۷۷ تومان
زیر بنای کلی متری:
۴۹,۰۰۴ تومان
زیر بنای کلی متری:
۵۷,۳۹۲ تومان
زیر بنای کلی متری:
۶۵,۱۱۲ تومان
زیر بنای کلی متری:
۶۹,۸۷۴ تومان
زیر بنای کلی متری:
۶۹,۷۵۰ تومان
زیر بنای کلی متری:
۸,۶۵۰ تومان
زیر بنای کلی متری:
۱۰,۷۵۰ تومان

مشهد فرامرز عباسی

مشهد شاندیز

مشهد بوستان

مشهد عبادی

مشهد امام رضا

مشهد الهیه
با تشکر از تیم اسنپ خونه پیشنهاد میشه حتما از خدمات این شرکت در زمینه ساختمان سازی استفاده کنید.
شما می توانید از طریق ثبت درخواست، درخواست خود را ثبت نمایید و یا با شماره تماس ارتباط برقرار کنید.
شما می توانید با مراجعه به تب تعرفه ها و با توجه به زیر بنای کل ملک و تعداد طبقات خود به سادگی هزینه طراحی خود را محاسبه نمایید.
هزینه طراحی نقشههای معماری اعم از قیمت طراحی فاز ۲ معماری و طراحی و تعرفه طراحی نظاممهندسی ۱۴۰۲ باید طبق تعرفهی مصوب صورت پذیرد.