امتیاز کاربران
۴.۶/۵
اخرین به روز رسانی ۱۴۰۲/۰۹/۰۸
طراحی و اجرای پلان تاسیسات پروژه های ساختمانی
انواع خدمات تخصصی طراحی
بازه قیمت خدمات : ۴۵۰ تا ۲۰۰۰ هزار تومان
بده بکوبیم!
تارو پود ساختمان شما
ما سعی داریم دنیا را کمی بیشتر شبیه روُیاهایتان کنیم
اخرین به روز رسانی ۱۴۰۲/۰۹/۰۸
انواع خدمات تخصصی طراحی
بازه قیمت خدمات : ۴۵۰ تا ۲۰۰۰ هزار تومان
۶۲
۹
۹۱ %
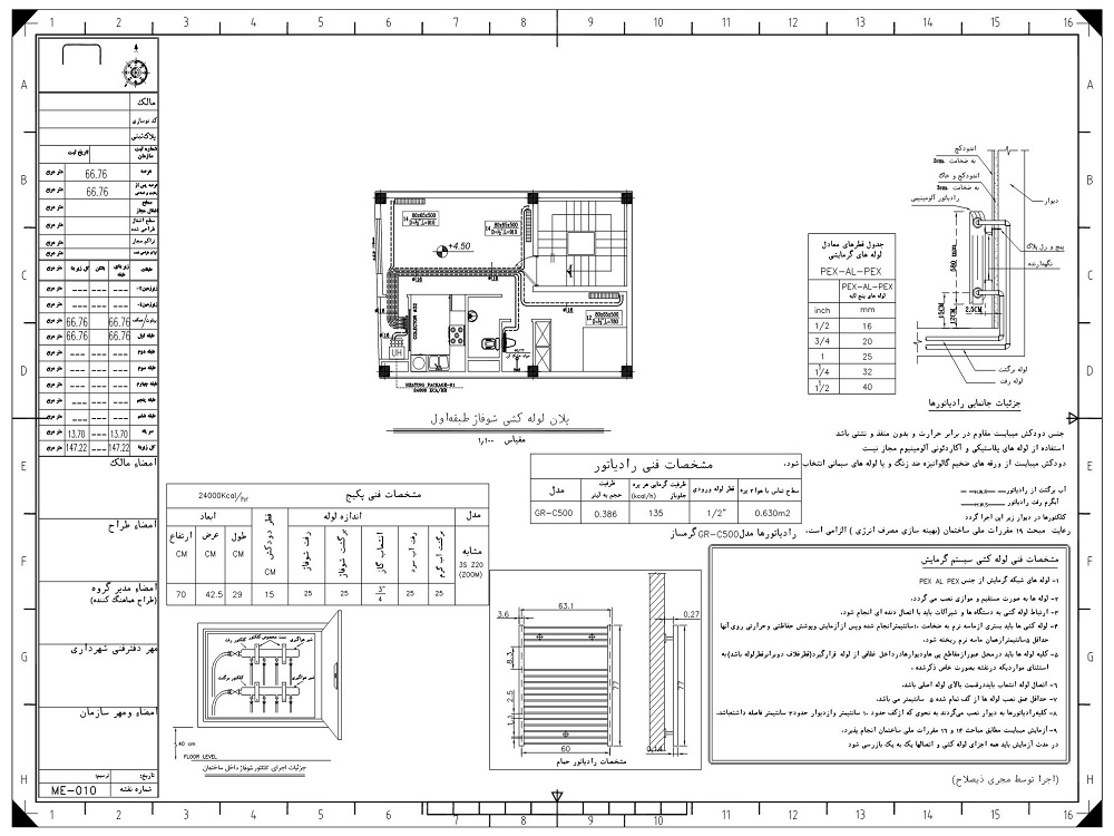
طراحی نقشه تاسیسات (برق و مکانیک)، متفاوت از نقشه ساختمان میباشد. نقشه تاسیسات، در واقع به انتخاب درست تجهیزات لازم برای سیستم برق و لولهکشی ساختمان و نیز محل درست قرارگیری و نصب هر یک از این تجهیزات مرتبط می شود.
به طور کلی، طراحی نقشه تاسیسات (برق و مکانیک) شامل طراحی فنی ساختمان می شود که موارد زیادی را در بر می گیرد. در ادامه به چند مورد آن اشاره می کنیم:
مشخص کردن محل نصب کلید و پریز از جمله پریز برق و تلفن.
طراحی تابلو برق و انجام محاسبات مربوطه
تعیین موقعیت و نوع سیستم گرمایشی و سرمایشی ساختمان. برای مثال، سیستم گرمایش پکیج رادیاتور، بخاری، شومینه و…
نصب سیستم فاضلاب
نصب لوله های گازرسان
تعیین ابزار روشنایی ساختمان و سیمکشی مربوطه
تعیین مشخصات و نقشه سیستم آبرسان
تعیین مشخصات و نقشه قائم سیستم های مورد استفاده برای گرمایش یا سرمایش و انجام محاسبات مربوطه
تعیین مشخصات و نقشه قائم سیستم فاضلاب
انجام محاسبات سیستم گرمایش و سرمایش مرکزی ساختمان
مشخصات بزرگنماییهای لازم در نقشه، مثل پله ها، در و پنجره و …
طراحی ۱ و ۲ طبقه :
۹,۹۶۴ تومان به ازای هر متر مربع زیربنای کلی
طراحی ۳ تا ۵ طبقه :
۱۷,۹۴۹ تومان به ازای هر متر مربع زیربنای کلی
طراحی ۶ و ۷ طبقه :
۲۲,۳۴۰ تومان به ازای هر متر مربع زیربنای کلی
طراحی ۸ تا ۱۰ طبقه :
۲۶,۱۶۴ تومان به ازای هر متر مربع زیربنای کلی
طراحی ۱۱ و ۱۲ طبقه :
۳۸,۸۵۷ تومان به ازای هر متر مربع زیربنای کلی
طراحی ۱۳ تا ۱۵ طبقه :
۴۱,۶۹۹ تومان به ازای هر متر مربع زیربنای کلی
طراحی ۱۶ طبقه و بالاتر :
۴۱,۶۲۵ تومان به ازای هر متر مربع زیربنای کلی
طراحی ۱ و ۲ طبقه :
۱۲,۱۳۷ تومان به ازای هر متر مربع زیربنای کلی
طراحی ۳ تا ۵ طبقه :
۲۱,۹۴۸ تومان به ازای هر متر مربع زیربنای کلی
طراحی ۶ و ۷ طبقه :
۲۷,۲۹۲ تومان به ازای هر متر مربع زیربنای کلی
طراحی ۸ تا ۱۰ طبقه :
۳۱,۹۹۲ تومان به ازای هر متر مربع زیربنای کلی
طراحی ۱۱ و ۱۲ طبقه :
۴۷,۵۸۳ تومان به ازای هر متر مربع زیربنای کلی
طراحی ۱۳ تا ۱۵ طبقه :
۵۰,۹۴۵ تومان به ازای هر متر مربع زیربنای کلی
طراحی ۱۶ طبقه و بالاتر :
۵۰,۸۷۵ تومان به ازای هر متر مربع زیربنای کلی
طراحی نقشه مکانیک ۱و ۲ بدون مهر ( حداقل متراژ ۵۰ متر) :
۴,۰۵۰ تومان به ازای هر متر مربع زیربنای کلی
طراحی ۱ و ۲ طبقه :
۵,۹۷۸ تومان به ازای هر متر مربع زیربنای کلی
طراحی ۳ تا ۵ طبقه :
۹,۵۷۲ تومان به ازای هر متر مربع زیربنای کلی
طراحی ۶ و ۷ طبقه :
۱۵,۱۳۳ تومان به ازای هر متر مربع زیربنای کلی
طراحی ۸ تا ۱۰ طبقه :
۱۷,۷۲۴ تومان به ازای هر متر مربع زیربنای کلی
طراحی ۱۱ و ۱۲ طبقه :
۲۳,۱۰۴ تومان به ازای هر متر مربع زیربنای کلی
طراحی ۱۳ تا ۱۵ طبقه :
۲۴,۷۹۴ تومان به ازای هر متر مربع زیربنای کلی
طراحی ۱۶ طبقه و بالاتر :
۲۴,۷۵۰ تومان به ازای هر متر مربع زیربنای کلی
طراحی ۱ و ۲ طبقه :
۷,۲۸۲ تومان به ازای هر متر مربع زیربنای کلی
طراحی ۳ تا ۵ طبقه :
۱۱,۷۰۵ تومان به ازای هر متر مربع زیربنای کلی
طراحی ۶ و ۷ طبقه :
۱۸,۴۸۸ تومان به ازای هر متر مربع زیربنای کلی
طراحی ۸ تا ۱۰ طبقه :
۲۱,۶۷۲ تومان به ازای هر متر مربع زیربنای کلی
طراحی ۱۱ و ۱۲ طبقه :
۲۸,۲۹۳ تومان به ازای هر متر مربع زیربنای کلی
طراحی ۱۳ تا ۱۵ طبقه :
۳۰,۲۹۱ تومان به ازای هر متر مربع زیربنای کلی
طراحی ۱۶ طبقه و بالاتر :
۳۰,۲۵۰ تومان به ازای هر متر مربع زیربنای کلی
طراحی نقشه مکانیک ۱و ۲ بدون مهر ( حداقل متراژ ۵۰ متر) :
۴,۲۵۰ تومان به ازای هر متر مربع زیربنای کلی

مشهد معلم

مشهد دانش اموز

مشهد صارمی

مشهد احمد آباد

مشهد فلسطین

مشهد الهیه
برای کار های ساختمانی یکی از آشنایان اقدام کردیم و برخوردشون بسیار عالی و خوب بود
برخورد و کارشون خیلی خوبه
طراحی نقشه تاسیسات (برق و مکانیک) شامل موارد و استانداردهایی است که در اینجا به چند مورد اصلی اشاره می کنیم: