امتیاز کاربران
۴.۶/۵
اخرین به روز رسانی ۱۴۰۲/۰۹/۰۸
طراحی پلان سازه پروژه های ساختمانی
انواع خدمات تخصصی طراحی سازه
بازه قیمت خدمات : ۴۵۰ تا ۲۰۰۰ هزار تومان
بده بکوبیم!
تارو پود ساختمان شما
ما سعی داریم دنیا را کمی بیشتر شبیه روُیاهایتان کنیم
اخرین به روز رسانی ۱۴۰۲/۰۹/۰۸
انواع خدمات تخصصی طراحی سازه
بازه قیمت خدمات : ۴۵۰ تا ۲۰۰۰ هزار تومان
۳۴
۷
۹۵ %
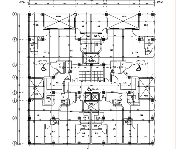
هنگامی که پلان معماری در فاز یک طراحی شد، اکنون پلان سازه در فاز دو ترسیم می گردد. در پلان سازه جزئیات مربوط به اجرای سازه به مهندسین نمایش داده می شود و با توجه به آن نظارت بر ساخت صورت می گیرد. از جمله پلان های سازه می توان به موارد زیر اشاره نمود:
پلان فونداسیون:
در این پلان موقعیت پی ها در زمین، ابعاد، تعداد و نوع آن ها تعیین می گردد.
پلان تیرریزی:
در پلان تیرریزی ابعاد تیرها، محل قرارگیری و نحوه اجرای آن ها در سقف هر طبقه نشان داده می شود. هر طبقه از ساختمان با توجه به شکل سقف خود می تواند یک پلان تیرریزی مجزا داشته باشد.
پلان آکس بندی و ستون گذاری:
در این پلان ابعاد و مکان قرارگیری ستون ها و محور های آن ها مشخص می گردد. در ترسیم این پلان تمام جزئیات مربوط به ستون ها و موقفیت نبشی ها باید تعیین شوند تا بتوان مقاطع ستون ها و نماد ها را نیز رسم کرد.
زیر بنای کلی متری:
۳۴,۸۷۴ تومان
زیر بنای کلی متری:
۴۰,۶۸۴ تومان
زیر بنای کلی متری:
۴۶,۱۲۱ تومان
زیر بنای کلی متری:
۵۴,۰۱۶ تومان
زیر بنای کلی متری:
۶۴,۰۶۲ تومان
زیر بنای کلی متری:
۶۸,۷۴۷ تومان
زیر بنای کلی متری:
۶۸,۶۲۵ تومان

مشهد دلاوران

مشهد عبادی
طراحی سازه پروژه ۶ طبقه ما به پیشنهاد یکی از همکارانم توسط تیم اسنپ خونه انجام شد و کار نظارت هم به همین گروه سپردم
طراحی سازه یک کار فنی است که در آن اسکلت و المانهای سازه طراحی میشود. دفاتر فنی ساختمان و مهندسین عمران مسئولیت طراحی سازه را به عهده میگیرند. ابعاد و اندازههای مربوط به تیرها، ستونها، مهاربندها و دیوارهای برشی در طراحی سازه مشخص میشود. در طراحی سازه تخصص، تجربه و مهارت تیم طراحی سازه حائز اهمیت است.
به منظور طراحی سازه نیاز به اطلاعات اولیهای در مورد ساختمان هست که مهمترین آن نقشههای فاز یک معماری است. نقشههای معماری شامل فضاها، محل ستونها، فاصله محورها (آکسها)، ارتفاع طبقات، محل آسانسور و راهپله و... میباشد. محاسبات و مدلسازی اولیه سازه ساختمان بر مبنای این نقشهها خواهد بود و عملاً بدون وجود این نقشهها طراحی سازه امکانپذیر نیست.
یک طراح سازه، وزن بخشهای مختلف را محاسبه میکند و به عنوان بار مرده به سازه اعمال میکند. به همین دلیل جنس مصالح مصرفی در بخشهای مختلف ساختمان باید در قبل از شروع طراحی سازه مشخص گردد.
۱- ایمنی
۲- هماهنگ با طرح معماری
۳- دهانههای بلند
۴- آویز تیرها
۵- راحتی در اجرا
۶- تیپبندی
۷- بهینهسازی
ایجاد نقشههای اجرائی طراحی سازه آخرین مرحله طراحی سازه است. کیفیت این نقشهها میتواند بر کیفیت ساخت تأثیر بگذارد. همچنین وجود خطا در نقشههای اجرائی سازه، در پروژهها خسارات زیادی را وارد کرده است. این نقشهها بایستی با حداکثر دقت تهیه شوند و برای عدم وجود خطا، کنترل مجدد گردند. یک نقشه طراحی سازه مناسب، نقشهای است که همه موارد اجرائی در آن دیده شده باشد، امکان تفسیر اشتباه از آن وجود نداشته باشد و بخشهای مختلف با هم تناقض نداشته باشند.
طراحی سازه، تولید نقشهها و اخذ تأییدیه نظام مهندسی و شهرداری، پایان کار یک شرکت طراحی سازه نیست. در زمان اجرای ساختمان بارها نیاز به مراجعه به شرکت طراحی سازه است. هر چند نقشههای اجرایی نباید مبهم باشد ولی ممکن است در برخی موارد نیاز به تفسیر باشد. همچنین در زمان اجرا ممکن است چالشهایی بوجود آید که با مراجعه به شرکت طراحی سازه قابل برطرف کردن میباشد. در مواردی پیش میآید که کارفرما یک بخش از سازه را اشتباه اجرا میکند در این موارد یا نیاز به تقویت سازه است یا ممکن است همچنان طراحی سازه پاسخگو باشد که این مورد هم توسط شرکت طراحی سازه بررسی میشود. ناظر پروژه میتواند نظر شرکت طراحی سازه در مورد مسائل بوجود آمده در کارگاه ساختمانی را جویا شود که در این وضعیت وظیفه کارفرما استعلام از شرکت طراحی سازه است. بنابراین حفظ تعامل سازنده با شرکت طراحی سازه در زمان ساخت مهم و ضروری است.